Beschreibung
Zentral an einer Sackgasse gelegene 6.5-Zimmer Doppelhaushälfte mit Vollunterkellerung und Erstellungsjahr 1996. Das Haus weist zwei Wohngeschosse und ein ausgebautes Dachgeschoss auf.
Im Erdgeschoss befindet sich neben dem Eingangsbereich mit Garderobe ein Gäste-WC mit Dusche, eine offene Küche und der grosszügige Wohn- / Essbereich mit direkten Ausgängen zu zwei verschieden ausgerichteten Sitzplätzen.
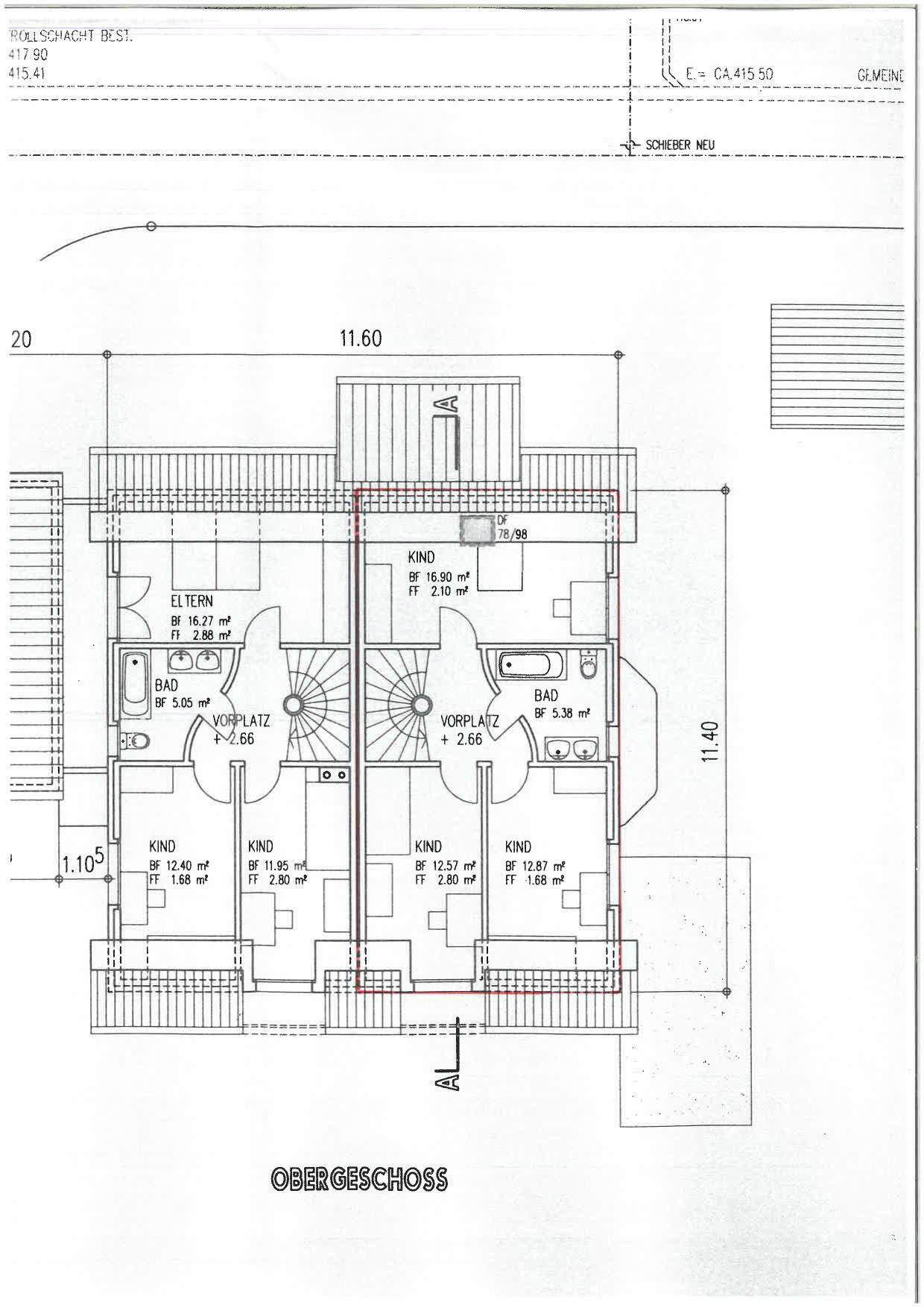
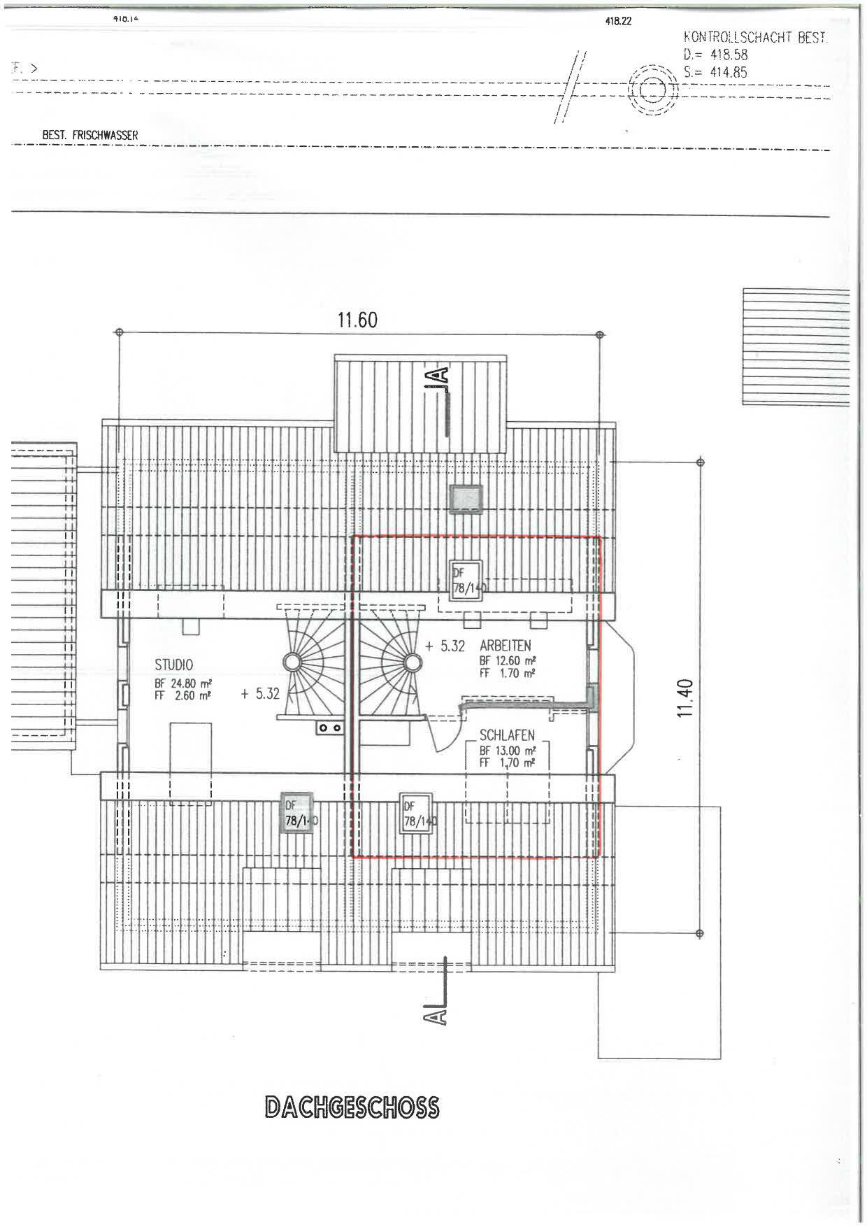
Das Obergeschoss ist unterteilt in 3 Schlafzimmer und ein Bad mit Badewanne, Doppellavabo und WC. Im Dachgeschoss stehen 2 weitere Zimmer zur Verfügung.
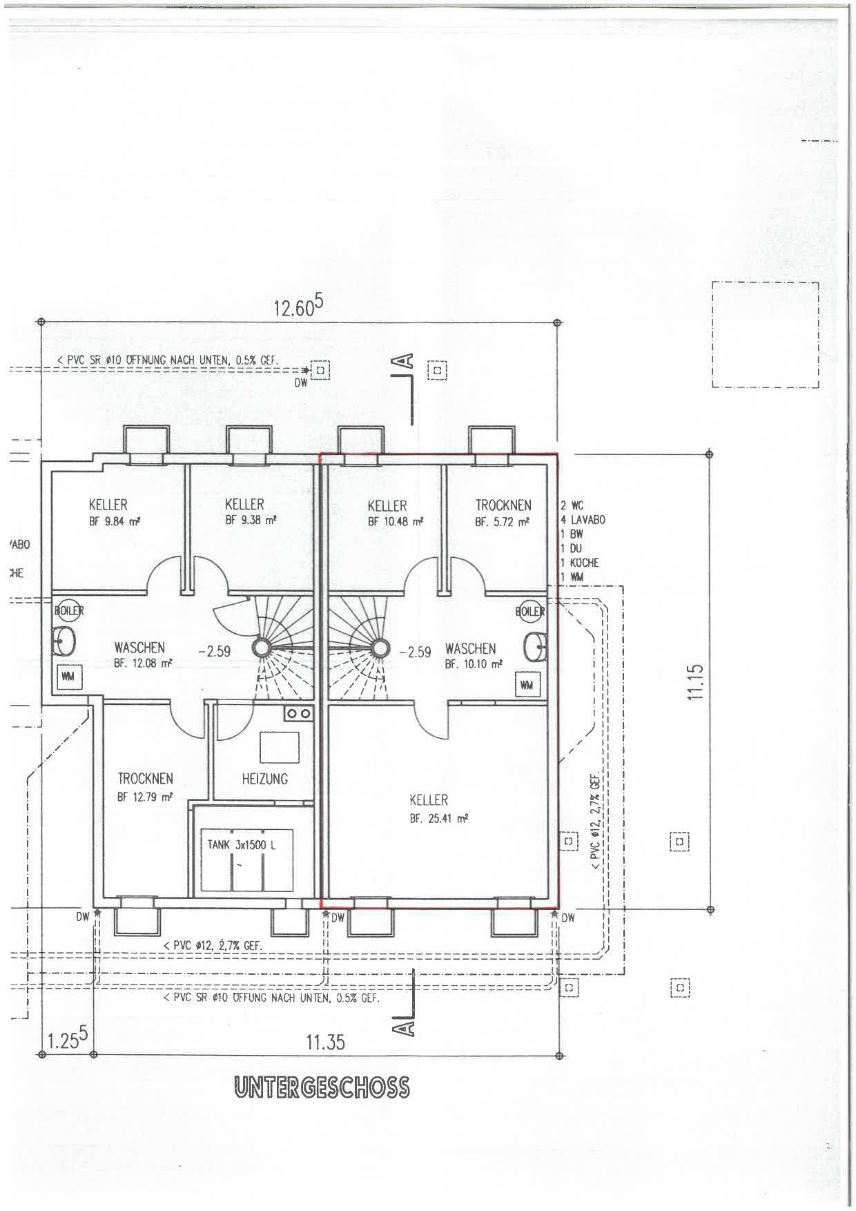
Das Untergeschoss bietet einen grossen Vorraum mit Waschmaschine und Waschtrog, zwei kleinere UG-Räume als Keller oder Trocknungsraum und einen 25.41 m2 grossen Keller, welcher diverse Nutzungen zulässt.
Die Liegenschaft wurde immer vorbildlich unterhalten. Seit 2013 wird das Haus mit einer Luft- / Wasserwärmepumpe beheizt, die Nasszellen und die Bodenbeläge wurden zwischen 2018 und 2020 ersetzt und sind absolut zeitgemäss und qualitativ hochwertig.
Die naturnahe und unterhaltsarme Umgebung verfügt über einen Carport und einen praktischen Velo- und Gartenschopf und einen schattenspendenden Baumbestand.
Das grosszügige und helle Einfamilienhaus bietet ca. 160 m2 Wohnfläche und ist geradezu ideal gelegen. Sowohl die Bushaltestelle als auch der Bahnhof sind in wenigen Minuten zu Fuss erreichbar, sämtliche Infrastrukturen von Schule, Sport und Freizeit befinden sich in unmittelbarer Umgebung.
Ein rundum stimmiges Zuhause zu einem fairen Preis wartet auf Sie.
Beratung und Verkauf
Schmidli Architekten + Partner AG
Urs Stühlinger
043 422 33 11
stue@schmidli.ch
Im Erdgeschoss befindet sich neben dem Eingangsbereich mit Garderobe ein Gäste-WC mit Dusche, eine offene Küche und der grosszügige Wohn- / Essbereich mit direkten Ausgängen zu zwei verschieden ausgerichteten Sitzplätzen.
Das Obergeschoss ist unterteilt in 3 Schlafzimmer und ein Bad mit Badewanne, Doppellavabo und WC. Im Dachgeschoss stehen 2 weitere Zimmer zur Verfügung.
Das Untergeschoss bietet einen grossen Vorraum mit Waschmaschine und Waschtrog, zwei kleinere UG-Räume als Keller oder Trocknungsraum und einen 25.41 m2 grossen Keller, welcher diverse Nutzungen zulässt.
Die Liegenschaft wurde immer vorbildlich unterhalten. Seit 2013 wird das Haus mit einer Luft- / Wasserwärmepumpe beheizt, die Nasszellen und die Bodenbeläge wurden zwischen 2018 und 2020 ersetzt und sind absolut zeitgemäss und qualitativ hochwertig.
Die naturnahe und unterhaltsarme Umgebung verfügt über einen Carport und einen praktischen Velo- und Gartenschopf und einen schattenspendenden Baumbestand.
Das grosszügige und helle Einfamilienhaus bietet ca. 160 m2 Wohnfläche und ist geradezu ideal gelegen. Sowohl die Bushaltestelle als auch der Bahnhof sind in wenigen Minuten zu Fuss erreichbar, sämtliche Infrastrukturen von Schule, Sport und Freizeit befinden sich in unmittelbarer Umgebung.
Ein rundum stimmiges Zuhause zu einem fairen Preis wartet auf Sie.
Beratung und Verkauf
Schmidli Architekten + Partner AG
Urs Stühlinger
043 422 33 11
stue@schmidli.ch
Eigenschaften
Umgebung
- Dorf
- Einkaufsmöglichkeiten
- Post
- Restaurant(s)
- Bahnhof
- Bushaltestelle
- Kinderfreundlich
- Spielplatz
- Kinderkrippe
- Kindergarten
- Primarschule
- Sekundarschule
- Hallenbad
Aussenbereich
- Gartensitzplatz
- Ruhige Lage
- Carport
Distanzen
Öffentliche Verkehrsmittel
121 m
5'
Primarschule
345 m
5'
Geschäfte
385 m
10'
Restaurants
149 m
-



















