Beschreibung
**Gemütliches Einfamilienhaus zum Verkauf an der Weinbergstrasse 22!**
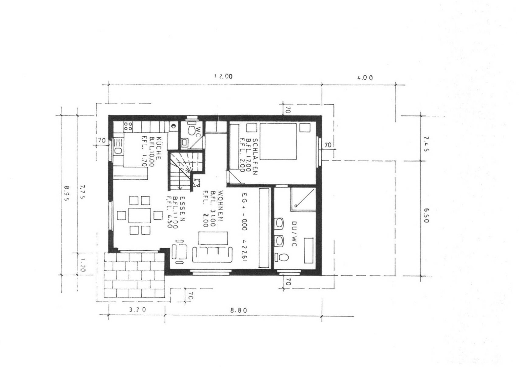
Dieses charmante Haus mit 4,5 Zimmern besticht durch eine offene, moderne Küche und ein grosszügiges Wohnzimmer mit Cheminéeofen. Auf dem selben Stockwerk befindet sich das Elternzimmer mit eigenem Bad, sowie ein Gäste-WC. Im Untergeschoss befinden sich der Eingangsbereich mit Garderobe, zwei Kinderzimmer mit eigenem Bad, die Waschküche, ein Keller und der Heizungsraum. Für die Fahrzeuge stehen eine grosse Garage, ein Carport und ein weiterer Abstellplatz zur Verfügung. Das Einfamilienhaus wurde 1989 in grundsolider Bauqualität mit einem Doppelschalenmauerwerk erstellt. Die Brutto-Wohnfläche von ca. 142 m² liesse sich problemlos vergrössern. Im unausgebauten Dachgeschoss können mit überschaubarem Aufwand weitere 79 m2 Wohnfläche realisiert werden.
Der Aussenraum ist unterhaltsarm gestaltet und verfügt über einen gedeckten Sitzplatz, eine Pergola und ein originelles Grill-Häuschen. Erholsamen Stunden im Freien steht nichts mehr im Weg.
Das Haus befindet sich in einer freundlichen Dorfgemeinschaft, am Fuss der Rebberge und bietet eine Fülle an Annehmlichkeiten. Kindergarten, Schulen, Laden und Restaurants sind bequem zu Fuss erreichbar, die Bushaltestelle befindet sich direkt vor der Haustüre. Für Sportbegeisterte gibt es Wander- und Radwege, sowie ein öffentliches Schwimmbad in der Nähe.
Diese Immobilie wurde vorbildlich unterhalten (Heizung 2013, Fenster 2018, Küche 2019, Aussentüren 2021) und ist bereit, Ihr neues Zuhause zu werden. Nutzen Sie diese vorteilhafte Gelegenheit, zu einem fairen Preis an guter Lage.
Verkauf und Beratung
Schmidli Architekten + Partner AG
Urs Stühlinger
Tel. 043 422 33 11
stue@schmidli.ch
Dieses charmante Haus mit 4,5 Zimmern besticht durch eine offene, moderne Küche und ein grosszügiges Wohnzimmer mit Cheminéeofen. Auf dem selben Stockwerk befindet sich das Elternzimmer mit eigenem Bad, sowie ein Gäste-WC. Im Untergeschoss befinden sich der Eingangsbereich mit Garderobe, zwei Kinderzimmer mit eigenem Bad, die Waschküche, ein Keller und der Heizungsraum. Für die Fahrzeuge stehen eine grosse Garage, ein Carport und ein weiterer Abstellplatz zur Verfügung. Das Einfamilienhaus wurde 1989 in grundsolider Bauqualität mit einem Doppelschalenmauerwerk erstellt. Die Brutto-Wohnfläche von ca. 142 m² liesse sich problemlos vergrössern. Im unausgebauten Dachgeschoss können mit überschaubarem Aufwand weitere 79 m2 Wohnfläche realisiert werden.
Der Aussenraum ist unterhaltsarm gestaltet und verfügt über einen gedeckten Sitzplatz, eine Pergola und ein originelles Grill-Häuschen. Erholsamen Stunden im Freien steht nichts mehr im Weg.
Das Haus befindet sich in einer freundlichen Dorfgemeinschaft, am Fuss der Rebberge und bietet eine Fülle an Annehmlichkeiten. Kindergarten, Schulen, Laden und Restaurants sind bequem zu Fuss erreichbar, die Bushaltestelle befindet sich direkt vor der Haustüre. Für Sportbegeisterte gibt es Wander- und Radwege, sowie ein öffentliches Schwimmbad in der Nähe.
Diese Immobilie wurde vorbildlich unterhalten (Heizung 2013, Fenster 2018, Küche 2019, Aussentüren 2021) und ist bereit, Ihr neues Zuhause zu werden. Nutzen Sie diese vorteilhafte Gelegenheit, zu einem fairen Preis an guter Lage.
Verkauf und Beratung
Schmidli Architekten + Partner AG
Urs Stühlinger
Tel. 043 422 33 11
stue@schmidli.ch
Eigenschaften
Umgebung
- Dorf
- Einkaufsmöglichkeiten
- Restaurant(s)
- Bushaltestelle
- Kindergarten
- Primarschule
- Sekundarschule
- Freibad
- Wanderwege
- Radweg
Aussenbereich
- Gartensitzplatz
- Garage
Innenbereich
- Offene Küche
- Gäste-WC
- Keller
- Schwedenofen
- Dreifachverglasung
- Lichtdurchflutet
Boden
- Fliesen
- Laminat
Zustand
- Gut
Ausrichtung
- Süden
- Osten
- Westen
Besonnung
- Gut
Distanzen
Öffentliche Verkehrsmittel
25 m
1'
-
-
Primarschule
350 m
6'
-
-
Geschäfte
243 m
5'
5'
1'
Restaurants
257 m
5'
5'
1'


















