Beschreibung
Im Geschäftshaus beim Bahnhof Rafz mit Baujahr 2014 vermieten wir eine Geschäftsfläche, repräsentativ, perfekt erschlossen, grosse und helle Räume.
Das Büro / Atelier befindet sich in unmittelbarer Nähe zum Bus und SBB Bahnhof mit regelmässigen Verbindungen nach Zürich, Schaffhausen (S9) und Winterthur (Bus).
Mietpreis pro Monat komplett ausgebaut:
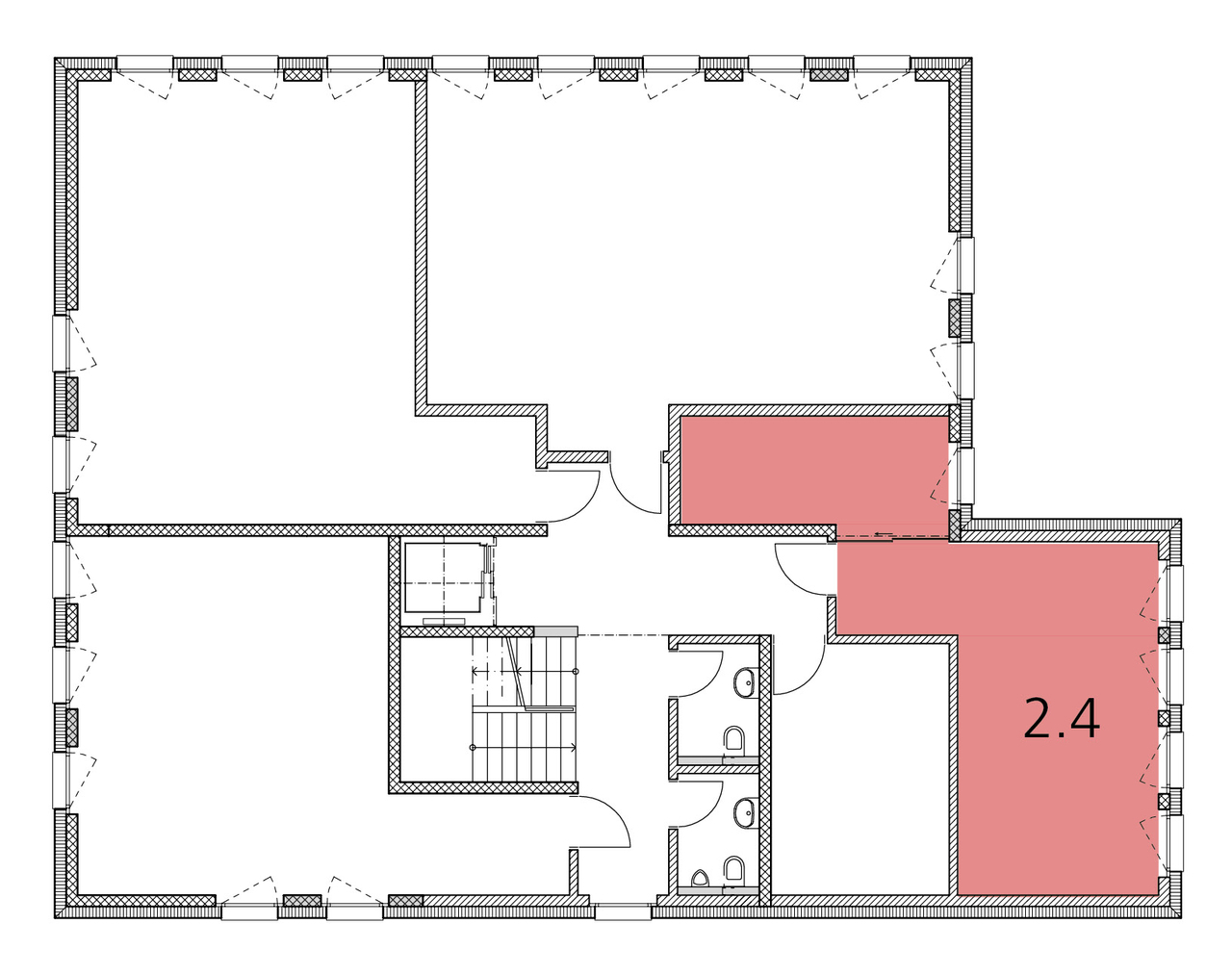
- Geschäftsfläche 2.4 = 36.0 m2 = CHF 800.- + Fr. 50.- NK pauschal
- Vermietung ab 1. März 2022 oder nach Vereinbarung
Auskunft und Beratung:
Tel: 043 422 33 11 │ Natel: 079 408 92 57
Mail: stue@schmidli.ch │ www.schmidli.ch
Das Büro / Atelier befindet sich in unmittelbarer Nähe zum Bus und SBB Bahnhof mit regelmässigen Verbindungen nach Zürich, Schaffhausen (S9) und Winterthur (Bus).
Mietpreis pro Monat komplett ausgebaut:
- Geschäftsfläche 2.4 = 36.0 m2 = CHF 800.- + Fr. 50.- NK pauschal
- Vermietung ab 1. März 2022 oder nach Vereinbarung
Auskunft und Beratung:
Tel: 043 422 33 11 │ Natel: 079 408 92 57
Mail: stue@schmidli.ch │ www.schmidli.ch
Lage
Geschäftshaus Bahnhofstrasse 88, 8197 Rafz
Eigenschaften
Aussenbereich
- Parkplatz
Innenbereich
- Lift
Ausstattung
- Kochnische
Distanzen
Bahnhof
130 m
2'
-
Flughafen
16 km
5h24
24'
Restaurants
240 m
3'
-










